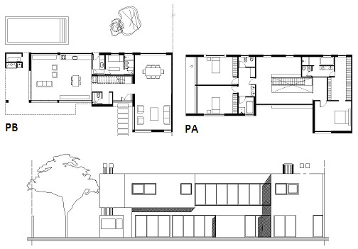
Se comienza a perder la ventaja en costos? julio 24, 2019 Obtener vínculo Facebook X Pinterest Correo electrónico Otras apps El costo de construir una vivienda de perímetro libre vuelve a acercarse a niveles similares a los del pico de del año 2017. Cómputo y presupuesto mensual, con variación en pesos y dólares. Los costos en pesos para construir una vivienda sobre lote propio se ubicaron en $ 73.535 por cada m2 el mes pasado, siendo el incremento mensual del 7,05%. Actualmente desarrollar una vivienda bajo esta tipología de 305 m2 (sin incluir el valor de la tierra) tiene un costo de U$S 532.498 en dólares BNA; unos 58.700 dólares menos de los que debería haber desembolsado en noviembre del año 2017 para hacer la misma casa. Para la tipología casas de perímetro libre se comienza a licuar la ventaja comparativa de la devaluación? Todo dependerá de cómo siga la cotización del dólar en los próximos meses, el retraso cambiario de estos últimos días sin dudas acotó la ventaja que ofrecía para tenedores de moneda americana: Documento y estadísticas completas de acceso exclusivo para usuarios abonados al portal. El modelo seleccionado responde a la tipología de vivienda unifamiliar implantada dentro de un barrio cerrado del Conurbano Bonaerense. Construida sobre un terreno en esquina, de manzana central, con una superficie de lote 800 m2 y 315 m2 cubiertos homogeneizados (semicubietos al 50%). Edificada en 2 niveles, con retiro de ejes divisorios del predio generando jardines y espacio de estacionamiento vehicular. Comentarios
Comentarios
Publicar un comentario